MUNICIPIO A CASTIONE ANDEVENNO
Nell’epoca del progressivo e incessante de-materializzarsi dei contenuti sociali (l’incontro, lo scambio, l’amicizia), proponiamo un lavoro di compensazione pedagogica e istruttiva attraverso la valorizzazione dell’esperienza spaziale per mezzo della - buona - architettura.
Perché l’edificio pubblico può essere quel meraviglioso dispositivo che, già prima di entrarvi, sia capace di ospitare, generare e invitare alle relazione:
con il prossimo, con se stessi, con il mondo, con lo spazio e con il tempo.
Da qui muove, nel nostro progetto, la particolare attenzione alla drammaturgia della visione - osservare, guardare, inquadrare, limitare, coprire, misurare – dell’azione - avvicinarsi, entrare, attraversare, salire,
percorrere, stare – e della speculazione - connettere, giudicare, immaginare, inventare, crescere e migliorare.
"L’eccezionalità funzionale-tipologica-simbolica del palazzo comunale è stata interpretata attraverso una pronunciata espressività architettonica a sottolineare il valore del luogo pubblico e collettivo nonché la sua
riconoscibilità alla scala della prossimità e a quella del paesaggio. L’inserimento paesaggistico trova ragione non tanto in un’idea di mimetismo stilistico quanto di accoglienza critica della forma, della misura e della
materia tipica.
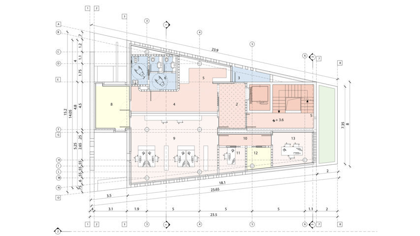
Il progetto prevede la demolizione dell’edificio esistente e la costruzione di un nuovo corpo di 4 piani
(in seconda fase ridotti 3) oltre il basamento e il piano di ingresso, per una altezza massima di 16 metri (in
seconda fase 14). L’impronta planimetrica a trapezio si struttura su di una maglia di pilotis e sul corpo scale in
cemento armato. Rialzato e permeabile al piano terra, l’edificio è integrato e organico alla nuova piazza che,
attraverso rampe e gradonate, permetto il raccordo delle diverse quote stradali e ne facilita la fruizione
pedonale e l’attraversamento. Il basamento si configura come podio allungato sull’intero lotto di costruzione e
assorbe lungo i suoi bordi il dislivello stradale. Contiene lungo la via Roma l’accesso carrabile al garage e al
deposito. La forma circolare dell’apertura si rapporta alla linea obliqua del piano stradale. L’edificio, in forma di
broletto, ha la cella di ingresso alla quota di contatto con la strada verso nord, assecondando quindi la
passeggiata a scendere.”























